Zur Navigation wechseln Zum Inhalt wechseln Zum Footer wechseln
Außen

Traumhaftes Penthouse in komplett saniertem Altbau

Gesamtmiete: 2.117,13 €

Bruttomiete: 1.857,13 €

Technische Angaben

ImmoNr.
DS3322

Preise

Bruttomiete
1.857,13 €
Betriebskosten brutto
198,00 €
Heizkosten brutto
62,00 €
Gesamtmiete
2.117,13 €

Kategorie

Objektart
Wohnung
Objekttyp
Penthouse
Nutzungsart
Wohnen
Vermarktungsart
Miete

Geografische Angaben

PLZ
9521
Ort
Treffen am Ossiacher See
Bundesland
Kärnten
Land
Österreich

Flächen

Wohnfläche
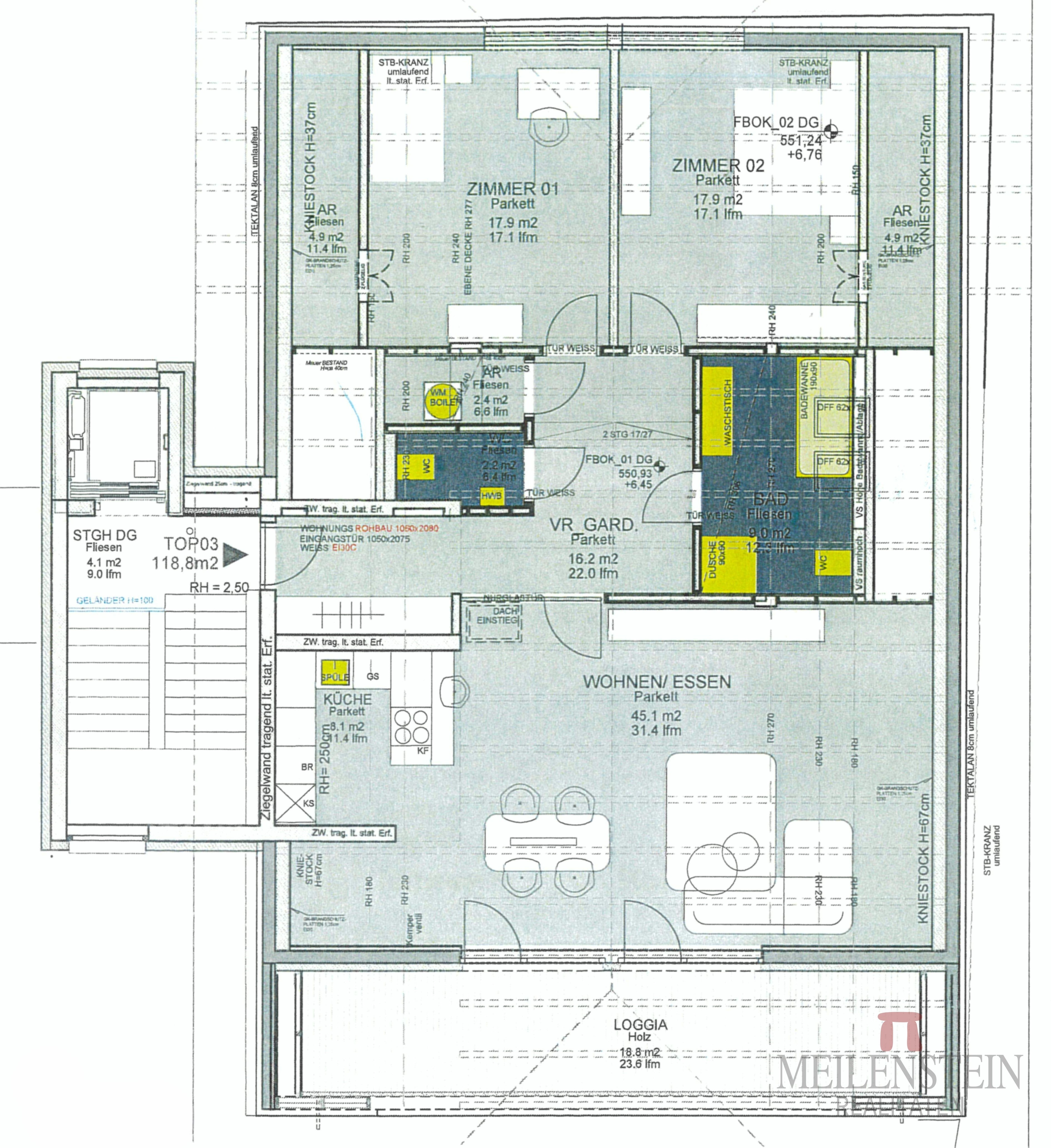
119 m²
Gesamtfläche
137 m²
Anzahl Zimmer
3
Anzahl Schlafzimmer
2
Anzahl Badezimmer
1
Anzahl sep. WC
2

Ausstattung

Befeuerung
Fernwärme
Boden
Fliesen, Parkett
Fahrstuhl
Personenaufzug
Stellplätze
1 Carport, 1 Freiplatz

Beschreibung

Wir präsentieren Ihnen die einzigartige Möglichkeit, ein Stück Geschichte zu mieten. Willkommen in einer einzigartigen Immobilie, die Geschichte und Moderne perfekt miteinander vereint. Diese stilvolle ca.118m² Wohnung samt einer ca. 18,8m² großen Loggia bietet alles, was das Herz begehrt.

Sie umfasst 2 großzügige Schlafzimmer, ein einladendes Wohn-Esszimmer samt Speisekammer mit direktem Zugang zu der herrlichen Loggia mit ca. 18,8m², ein topmodernes Badezimmer mit Dusche , Wanne und WC, ein Abstellraum sowie ein Gäste WC.

Schönes Wohnen in perfekt inszeniertem Ambiente. Die raffiniert verbaute Beleuchtung setzt die Wohnung perfekt in Szene und verleiht ihr ein besonderes Ambiente.

Das Gebäude, ursprünglich um 1800 errichtet, wurde in den letzten 24 Monaten umfassend mit viel Liebe zum Detail saniert und auf den neuesten Stand gebracht. Sogar ein Personenaufzug wurde verbaut dadurch erreichen Sie die Immobilie auf bequemen Weg.

Ein PKW-Abstellplatz sowie ein Carport sind inklusive. Ein großer Kellerraum bietet zusätzlichen Stauraum.

Neubau Erstbezug im Kleid von früher. Diese Wohnung vereint historischen Charme mit modernem Komfort – ein wahres Juwel!
Die Glasfaserleitung für schnelles Internet ist auch in der Immobilie für Sie bereit.

Überzeugen Sie sich von dieser Traumwohnung in Treffen am Ossiachersee.

Kontakt Daniel Schwarzmann 066475005991

Sonstige Kosten: Kaution

Sie wollen Ihre Immobilie vermieten oder verkaufen? Wir stehen Ihnen gerne zur Seite und beraten Sie!

Meilenstein Realitäten GmbH
9220 Velden am Wörthersee | Am Corso 27
Kostenfreie Servicenummer 0800 221 750

Lage

Die Immobilie befindet sich in einer ruhigen und idyllischen Wohngegend in Treffen am Ossiachersee, einer charmanten Gemeinde in Kärnten. Die Lage kombiniert die Nähe zur Natur mit einer guten Anbindung an wichtige Infrastruktur. Das Grundstück liegt nur wenige Minuten vom malerischen Ossiachersee entfernt, der vielfältige Freizeitmöglichkeiten bietet, darunter Schwimmen, Segeln und Wandern. Die umliegende Berglandschaft lädt zu ausgedehnten Spaziergängen, Wanderungen und Radtouren ein. Im Winter ist das nahegelegene Skigebiet Gerlitzen ein beliebtes Ziel für Wintersportler.

Die Autobahn A10 ist in wenigen Minuten erreichbar, was eine schnelle Anbindung an die Städte Villach und Klagenfurt ermöglicht. Der Bahnhof in Villach bietet zudem Verbindungen in die umliegenden Regionen sowie nach Slowenien und Italien. Hier vereinen sich naturnahe Erholung und eine hervorragende Anbindung, was die Immobilie zu einem attraktiven Angebot für anspruchsvolle Käufer macht.

energieausweistyp

Energieausweis gültig bis
15.04.2033
HWB
53 kWh/(m²a)
Klasse HWB
C
fGEE
0,85
Klasse fGEE
A
Baujahr
1800

Deine Anfrage zu der Immobilie „Traumhaftes Penthouse in komplett saniertem Altbau“ (DS3322)

Ihre Kontaktdaten

* Pflichtfelder

Ihr Ansprechpartner

Daniel Schwarzmann

Herr Daniel Schwarzmann

Meilenstein Realitäten GmbH

Tel.:
0664 7500 5991
E-Mail:
d.schwarzmann@meilenstein.co.at

Am Corso 27
9220 Velden am Wörther See

Weitere Immobilien

Historisches Flair trifft moderne– Stilvolles Wohnen oder Arbeiten mit Blick auf den Hauptplatz.

ImmoNr.: DS3392 Wohnung Etagenwohnung Miete 9500 Villach Bundesland: Kärnten Anzahl Zimmer: 2 Anzahl Schlafzimmer: 1 Wohnfläche: 77 m²

"Seeblick-Loft!" Traumhafte Dachgeschosswohnung im Kernzentrum von Velden

ImmoNr.: AH3406 Wohnung Penthouse Miete 9220 Velden am Wörther See Bundesland: Kärnten Anzahl Zimmer: 2 Anzahl Schlafzimmer: 1 Wohnfläche: 84 m²

Lebensqualität – Gartenwohnung mit Seezugang in Alt-Ossiach

ImmoNr.: DS3429 Wohnung Gartenwohnung Miete 9570 Ossiach Bundesland: Kärnten Anzahl Zimmer: 3 Anzahl Schlafzimmer: 2 Wohnfläche: 63 m²

Velden Zentrum: Traumhaftes Penthouse mit Panoramablick über den Wörthersee und die Veldener Bucht

ImmoNr.: AH3446 Wohnung Penthouse Miete 9220 Velden am Wörther See Bundesland: Kärnten Anzahl Zimmer: 3 Anzahl Schlafzimmer: 2 Wohnfläche: 132 m²