Das gegenständliche Stadthaus präsentiert sich als vielseitige und substanzstarke Liegenschaft mit klar strukturierter Aufteilung über mehrere Ebenen. Die Grundrisse zeigen ein durchdachtes Raumkonzept mit unterschiedlich großen Einheiten, das sowohl Wohn- als auch Büro- bzw. Mischnutzungen ermöglicht und damit eine hohe Flexibilität in der Nutzung bietet.
Die einzelnen Tops verfügen über gut proportionierte Grundrisse mit funktionalen Vorzimmern, getrennten Sanitärbereichen, eigenständigen Küchenlösungen sowie großzügigen Wohn- und Aufenthaltsräumen. Mehrere Einheiten sind als klassische Wohnungen konzipiert, andere eignen sich ideal als Büro-, Praxis- oder Atelierflächen. Diese Mischung schafft eine breite Zielgruppe bei der Vermietung und erhöht die langfristige Auslastung.
Besonders hervorzuheben sind die Freiflächen: Balkone, Terrassen und Dachterrassen erweitern den Wohnraum nach außen und steigern die Wohnqualität deutlich – ein wesentliches Qualitätsmerkmal in zentraler Stadtlage. Die oberen Ebenen profitieren zusätzlich von guter Belichtung und angenehmen Raumhöhen, was die Attraktivität der Einheiten weiter erhöht.
Die Grundrissstruktur erlaubt sowohl die getrennte Vermietung einzelner Einheiten als auch eine Kombination von Wohnen und Arbeiten innerhalb des Hauses. Ebenso ist eine Eigennutzung einzelner Tops bei gleichzeitiger Weitervermietung der übrigen Flächen problemlos möglich.
Insgesamt überzeugt das Haus durch seine klare Aufteilung, die vielseitigen Nutzungsmöglichkeiten und die ausgewogene Mischung unterschiedlicher Einheiten. Es bietet damit eine solide Basis für eine nachhaltige Vermietung, stabile Erträge sowie zukünftige Anpassungen an sich verändernde Wohn- und Nutzungskonzepte.
Ein ausführlicher Folder mit Angabe des Kaufpreises sowie aller Details, mit ausführlichen Fotos sowie allen Grundrissen der Wohnungen, Mietkurzübersicht und Rendite wird gerne auf Anfrage und vollständiger Angabe der erforderlichen Kontaktdaten übermittelt.
Der Vermittler ist als Doppelmakler tätig.
Sonstige Nebenkosten: 3,0% Vermittlungsprovision zzgl. 20% MwSt., Grunderwerbsteuer 3,5%, Grundbucheintragungsg. 1,1%, Vertragserrichtungskosten nach Vereinbarung
Sie wollen Ihre Immobilie vermieten oder verkaufen? Wir stehen Ihnen gerne zur Seite und beraten Sie!
Meilenstein Realitäten GmbH
A-6020 Innsbruck | Maria-Theresien-Straße 34
Kostenfreie Servicenummer 0800 221 750
Renditesicheres Zinshaus in Bestlage der Steyrer Altstadt
Kaufpreis: Preis auf Anfrage
Immobiliendetails
Technische Angaben
- JJ3440
- ImmoNr.
Preise
- Preis auf Anfrage
- Kaufpreis
- Preis auf Anfrage
- Gesamtmiete
- 3 % vom Kaufpreis zzgl. 20 % MwSt.
- Aussenprovision
Kategorie
- Zins und Renditeobjekte
- Objektart
- Wohn- und Geschäftshaus
- Objekttyp
- Wohnen
- Nutzungsart
- Kauf
- Vermarktungsart
Geografische Angaben
- 4400
- PLZ
- Steyr
- Ort
- Oberösterreich
- Bundesland
- Österreich
- Land
Flächen
- 874 m²
- Wohnfläche
- 8
- Anzahl Wohneinheiten
Ausstattung
- 4
- Etagenzahl gesamt
- Kein Fahrstuhl
- Fahrstuhl
Ansprechpartner:
Herr Josef Jajtic
Meilenstein Realitäten GmbH
- Tel.:
- 0699/19090363
- E-Mail:
- j.jajtic@meilenstein.co.at
Schulstrasse 13
4531 Kematen an der Krems
Beschreibung
Grundrisse
Ausstattung Beschreibung
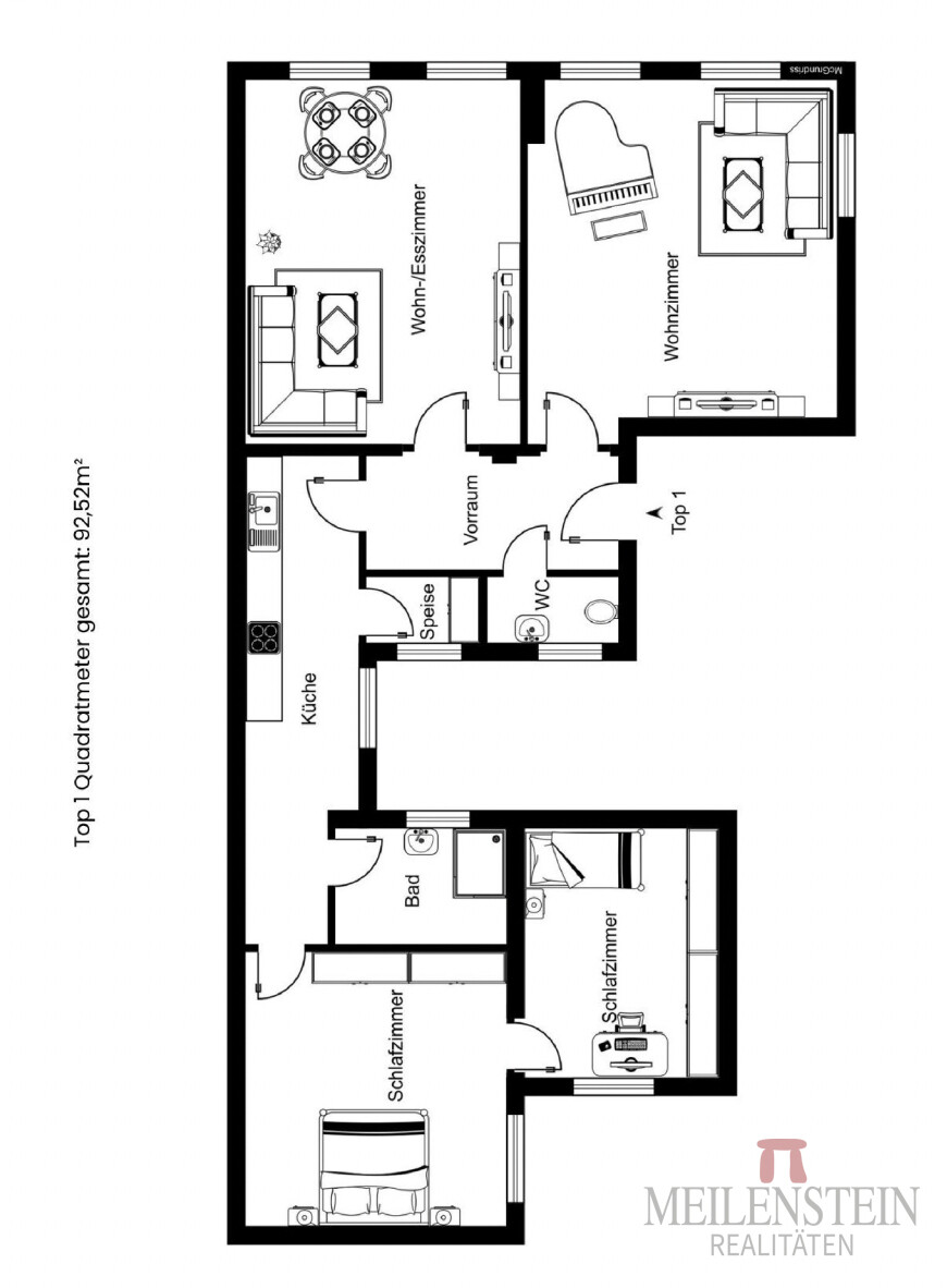
Top 1 – Großzügige Wohnung mit flexibler Raumstruktur
ca. 92,52 m²
Top 1 überzeugt durch eine großzügige Wohnfläche und eine klare, gut nutzbare Raumaufteilung. Über ein zentrales Vorzimmer sind sämtliche Räume separat begehbar. Der Wohn-/Essbereich sowie ein zusätzliches Wohnzimmer bieten vielfältige Nutzungsmöglichkeiten – etwa als Familienwohnung, großzügiges Stadtapartment oder Kombination aus Wohnen und Arbeiten.
Die Küche ist separat angeordnet und verfügt über praktische Nebenflächen (Speis). Zwei Schlafzimmer, ein Badezimmer sowie ein separates WC runden das Raumangebot ab. Aufgrund der Größe und Struktur eignet sich diese Einheit besonders für Familien, Paare mit Platzbedarf oder auch für eine hochwertige WG-Vermietung.
Vermietungspotenzial: sehr gut, langfristig stabil
Zielgruppe: Familien, Paare, WG
Top 2 – Familien- oder WG-geeignete Wohnung mit Balkon
ca. 105,07 m²
Diese Einheit bietet eine großzügige und äußerst funktionale Aufteilung mit mehreren separat begehbaren Zimmern. Der helle Wohn-/Essbereich bildet das Zentrum der Wohnung und verfügt über direkten Zugang zum Balkon, der zusätzlichen Freiraum schafft.
Mehrere Schlafzimmer, eine separate Küche, Badezimmer sowie ein zusätzliches WC ermöglichen sowohl klassische Familiennutzung als auch eine sehr gut funktionierende WG-Vermietung. Die klare Raumtrennung sorgt für Privatsphäre und hohe Alltagstauglichkeit.
Vermietungspotenzial: sehr hoch
Zielgruppe: Familien, Studierende, Wohngemeinschaften
Top 5 – Moderne Wohnung mit Terrasse / Dachterrasse
ca. 59,2 m²
Top 5 ist eine kompakte, hochwertig nutzbare Einheit mit besonderem Mehrwert durch eine großzügige Terrasse. Der offen gestaltete Wohn-/Essbereich mit integrierter Küche öffnet sich direkt zur Freifläche und schafft ein urbanes Wohngefühl mit hoher Aufenthaltsqualität.
Ein separates WC, ein klar strukturierter Grundriss sowie die zusätzliche Außenfläche machen diese Wohnung besonders attraktiv für Eigennutzer oder qualitätsorientierte Mieter.
Vermietungspotenzial: sehr gut
Zielgruppe: Singles, Paare, Eigennutzer
Top 7 – Büro- / Praxis- oder Atelierfläche
ca. 61,92 m²
Diese Einheit ist als Büro- bzw. Arbeitsfläche konzipiert und verfügt über mehrere gut nutzbare Räume, eine Teeküche sowie ein separates WC. Die Grundrissgestaltung erlaubt eine flexible Nutzung als Büro, Praxis, Atelier oder Dienstleistungsfläche.
Durch die Lage im Haus und die klare Trennung vom klassischen Wohnbereich eignet sich Top 7 ideal für gewerbliche Mieter oder als ergänzende Nutzung innerhalb eines gemischt genutzten Stadthauses.
Vermietungspotenzial: stabil
Zielgruppe: Freiberufler, Dienstleister, kleine Unternehmen
Top 8 – Kompakte Wohnung / Studio
(laut Grundriss: Wohn-/Schlafbereich, Bad)
Diese Einheit bietet eine kompakte Wohnlösung mit klarer Raumstruktur. Der offene Wohn-/Schlafbereich wird durch ein separates Badezimmer ergänzt. Aufgrund der Größe und einfachen Nutzbarkeit eignet sich diese Einheit besonders für Singles, Studierende oder als Startwohnung.
Vermietungspotenzial: sehr gut, kurze Leerstände
Zielgruppe: Singles, Studierende, Pendler
ca. 92,52 m²
Top 1 überzeugt durch eine großzügige Wohnfläche und eine klare, gut nutzbare Raumaufteilung. Über ein zentrales Vorzimmer sind sämtliche Räume separat begehbar. Der Wohn-/Essbereich sowie ein zusätzliches Wohnzimmer bieten vielfältige Nutzungsmöglichkeiten – etwa als Familienwohnung, großzügiges Stadtapartment oder Kombination aus Wohnen und Arbeiten.
Die Küche ist separat angeordnet und verfügt über praktische Nebenflächen (Speis). Zwei Schlafzimmer, ein Badezimmer sowie ein separates WC runden das Raumangebot ab. Aufgrund der Größe und Struktur eignet sich diese Einheit besonders für Familien, Paare mit Platzbedarf oder auch für eine hochwertige WG-Vermietung.
Vermietungspotenzial: sehr gut, langfristig stabil
Zielgruppe: Familien, Paare, WG
Top 2 – Familien- oder WG-geeignete Wohnung mit Balkon
ca. 105,07 m²
Diese Einheit bietet eine großzügige und äußerst funktionale Aufteilung mit mehreren separat begehbaren Zimmern. Der helle Wohn-/Essbereich bildet das Zentrum der Wohnung und verfügt über direkten Zugang zum Balkon, der zusätzlichen Freiraum schafft.
Mehrere Schlafzimmer, eine separate Küche, Badezimmer sowie ein zusätzliches WC ermöglichen sowohl klassische Familiennutzung als auch eine sehr gut funktionierende WG-Vermietung. Die klare Raumtrennung sorgt für Privatsphäre und hohe Alltagstauglichkeit.
Vermietungspotenzial: sehr hoch
Zielgruppe: Familien, Studierende, Wohngemeinschaften
Top 5 – Moderne Wohnung mit Terrasse / Dachterrasse
ca. 59,2 m²
Top 5 ist eine kompakte, hochwertig nutzbare Einheit mit besonderem Mehrwert durch eine großzügige Terrasse. Der offen gestaltete Wohn-/Essbereich mit integrierter Küche öffnet sich direkt zur Freifläche und schafft ein urbanes Wohngefühl mit hoher Aufenthaltsqualität.
Ein separates WC, ein klar strukturierter Grundriss sowie die zusätzliche Außenfläche machen diese Wohnung besonders attraktiv für Eigennutzer oder qualitätsorientierte Mieter.
Vermietungspotenzial: sehr gut
Zielgruppe: Singles, Paare, Eigennutzer
Top 7 – Büro- / Praxis- oder Atelierfläche
ca. 61,92 m²
Diese Einheit ist als Büro- bzw. Arbeitsfläche konzipiert und verfügt über mehrere gut nutzbare Räume, eine Teeküche sowie ein separates WC. Die Grundrissgestaltung erlaubt eine flexible Nutzung als Büro, Praxis, Atelier oder Dienstleistungsfläche.
Durch die Lage im Haus und die klare Trennung vom klassischen Wohnbereich eignet sich Top 7 ideal für gewerbliche Mieter oder als ergänzende Nutzung innerhalb eines gemischt genutzten Stadthauses.
Vermietungspotenzial: stabil
Zielgruppe: Freiberufler, Dienstleister, kleine Unternehmen
Top 8 – Kompakte Wohnung / Studio
(laut Grundriss: Wohn-/Schlafbereich, Bad)
Diese Einheit bietet eine kompakte Wohnlösung mit klarer Raumstruktur. Der offene Wohn-/Schlafbereich wird durch ein separates Badezimmer ergänzt. Aufgrund der Größe und einfachen Nutzbarkeit eignet sich diese Einheit besonders für Singles, Studierende oder als Startwohnung.
Vermietungspotenzial: sehr gut, kurze Leerstände
Zielgruppe: Singles, Studierende, Pendler
Lage
Das Stadthaus in der Enge Gasse befindet sich in absoluter Bestlage der Steyrer Altstadt und zählt zu den nachhaltig gefragtesten Wohn- und Investitionslagen der Stadt. Die zentrale Position innerhalb des historischen Stadtkerns garantiert eine konstant hohe Nachfrage nach Wohn- und Geschäftsflächen und bietet damit hervorragende Voraussetzungen für eine langfristig stabile Rendite.
Durch die fußläufige Erreichbarkeit von Arbeitsplätzen, Bildungs- und Verwaltungseinrichtungen, Einkaufsmöglichkeiten, Gastronomie sowie kulturellen Angeboten ist diese Lage besonders attraktiv für Mieter unterschiedlichster Zielgruppen – darunter Singles, Paare, Studierende, Berufspendler, Mitarbeiter regionaler Betriebe sowie Personen, die bewusst urban und autofrei wohnen möchten. Dies führt erfahrungsgemäß zu einer sehr guten Auslastung und kurzen Leerstandszeiten.
Steyr ist ein bedeutender Wirtschaftsstandort mit namhaften Arbeitgebern, insbesondere im Industrie-, Technologie- und Dienstleistungssektor. Die Nähe zu Betrieben, Behörden und Bildungseinrichtungen stärkt die Nachfrage nach zentral gelegenem Wohnraum zusätzlich und macht die Enge Gasse zu einem bevorzugten Standort für langfristige Vermietungen ebenso wie für flexible Wohnkonzepte.
Auch im Bereich der Kurz- und mittelfristigen Vermietung (z. B. für Projektmitarbeiter, Geschäftsreisende oder temporäre Aufenthalte) bietet die zentrale Altstadtlage großes Potenzial. Die historische Umgebung, kombiniert mit moderner Infrastruktur, sorgt für eine überdurchschnittliche Attraktivität und damit für sehr gute Auslastungsquoten.
Die ausgezeichnete Anbindung an den öffentlichen Verkehr, der Bahnhof Steyr sowie die schnelle Erreichbarkeit der B115 und der A1-Westautobahn erhöhen die Standortqualität zusätzlich und erweitern den potenziellen Mieterkreis auf Pendler aus dem Umland und dem Zentralraum Oberösterreich.
Insgesamt vereint diese Lage eine hohe Wohnqualität mit hervorragenden wirtschaftlichen Rahmenbedingungen. Die Kombination aus zentraler Altstadtlage, stabiler Mietnachfrage und vielseitigen Nutzungsmöglichkeiten macht das Stadthaus in der Enge Gasse zu einer besonders interessanten und zukunftssicheren Investitionsimmobilie mit attraktiven Renditechancen.
Durch die fußläufige Erreichbarkeit von Arbeitsplätzen, Bildungs- und Verwaltungseinrichtungen, Einkaufsmöglichkeiten, Gastronomie sowie kulturellen Angeboten ist diese Lage besonders attraktiv für Mieter unterschiedlichster Zielgruppen – darunter Singles, Paare, Studierende, Berufspendler, Mitarbeiter regionaler Betriebe sowie Personen, die bewusst urban und autofrei wohnen möchten. Dies führt erfahrungsgemäß zu einer sehr guten Auslastung und kurzen Leerstandszeiten.
Steyr ist ein bedeutender Wirtschaftsstandort mit namhaften Arbeitgebern, insbesondere im Industrie-, Technologie- und Dienstleistungssektor. Die Nähe zu Betrieben, Behörden und Bildungseinrichtungen stärkt die Nachfrage nach zentral gelegenem Wohnraum zusätzlich und macht die Enge Gasse zu einem bevorzugten Standort für langfristige Vermietungen ebenso wie für flexible Wohnkonzepte.
Auch im Bereich der Kurz- und mittelfristigen Vermietung (z. B. für Projektmitarbeiter, Geschäftsreisende oder temporäre Aufenthalte) bietet die zentrale Altstadtlage großes Potenzial. Die historische Umgebung, kombiniert mit moderner Infrastruktur, sorgt für eine überdurchschnittliche Attraktivität und damit für sehr gute Auslastungsquoten.
Die ausgezeichnete Anbindung an den öffentlichen Verkehr, der Bahnhof Steyr sowie die schnelle Erreichbarkeit der B115 und der A1-Westautobahn erhöhen die Standortqualität zusätzlich und erweitern den potenziellen Mieterkreis auf Pendler aus dem Umland und dem Zentralraum Oberösterreich.
Insgesamt vereint diese Lage eine hohe Wohnqualität mit hervorragenden wirtschaftlichen Rahmenbedingungen. Die Kombination aus zentraler Altstadtlage, stabiler Mietnachfrage und vielseitigen Nutzungsmöglichkeiten macht das Stadthaus in der Enge Gasse zu einer besonders interessanten und zukunftssicheren Investitionsimmobilie mit attraktiven Renditechancen.
Sonstige Angaben
Lagequalität & nachhaltige Ertragsperspektive
Dieses charaktervolle Stadthaus in zentraler Altstadtlage von Steyr stellt eine seltene Gelegenheit für Investoren dar, die Wert auf Substanz, stabile Mieteinnahmen und zukünftiges Entwicklungspotenzial legen. Die Liegenschaft überzeugt durch ihre hervorragende Mikrolage im Herzen der Stadt sowie durch eine ausgewogene Nutzungsstruktur, die sowohl Wohn- als auch gewerblich nutzbare Flächen umfasst.
Die zentrale Position zwischen Fußgängerzone, Stadtplatz und Ennsufer sorgt für eine durchgehend hohe Frequenz und Sichtbarkeit. Dadurch ist eine konstant starke Nachfrage nach allen Nutzungseinheiten gegeben – sowohl im Wohn- als auch im Geschäftsbereich. Die breite Mieterstruktur minimiert das Risiko von Ertragsschwankungen und schafft eine solide Basis für langfristige, planbare Einnahmen.
Besonders attraktiv ist die Lage für die Vermietung an Studierende, Berufstätige und urbane Zielgruppen. Die Nähe zur FH Steyr, zu Arbeitgebern, Gastronomie, Nahversorgung und öffentlichen Einrichtungen führt zu einer überdurchschnittlich hohen Auslastung und kurzen Wiedervermietungszeiten. Auch Wohngemeinschaften sowie kompakte Stadtwohnungen sind in dieser Lage nachhaltig gefragt.
Kombination aus Eigennutzung & Investment
Die Liegenschaft bietet darüber hinaus die Möglichkeit, Wohnen und Veranlagung ideal zu kombinieren. Dachterrassen- bzw. Freiflächen mit Blickrichtung Ennsufer schaffen ein hohes Maß an Wohnqualität und eignen sich hervorragend für Eigennutzer, die das Leben in der Altstadt schätzen, während der restliche Teil des Hauses weiterhin ertragreich vermietet wird.
Entwicklungspotenzial & Werthaltigkeit
Die kleinteilige Gebäudestruktur eröffnet vielfältige Optionen für zukünftige Nutzungskonzepte – von der Optimierung bestehender Grundrisse über die Weiterentwicklung von Atelier- oder Gewerbeflächen bis hin zu wertsteigernden Adaptierungen. Diese Flexibilität, gepaart mit der historisch gewachsenen Altstadtlage, bietet langfristiges Entwicklungspotenzial bei gleichzeitig hoher Bestandssicherheit.
In Summe vereint diese Immobilie eine exzellente Lage, stabile Vermietbarkeit und zusätzliche Entwicklungschancen – eine überzeugende Investition für Anleger, die auf nachhaltige Rendite, Werterhalt und urbane Qualität setzen.
Dieses charaktervolle Stadthaus in zentraler Altstadtlage von Steyr stellt eine seltene Gelegenheit für Investoren dar, die Wert auf Substanz, stabile Mieteinnahmen und zukünftiges Entwicklungspotenzial legen. Die Liegenschaft überzeugt durch ihre hervorragende Mikrolage im Herzen der Stadt sowie durch eine ausgewogene Nutzungsstruktur, die sowohl Wohn- als auch gewerblich nutzbare Flächen umfasst.
Die zentrale Position zwischen Fußgängerzone, Stadtplatz und Ennsufer sorgt für eine durchgehend hohe Frequenz und Sichtbarkeit. Dadurch ist eine konstant starke Nachfrage nach allen Nutzungseinheiten gegeben – sowohl im Wohn- als auch im Geschäftsbereich. Die breite Mieterstruktur minimiert das Risiko von Ertragsschwankungen und schafft eine solide Basis für langfristige, planbare Einnahmen.
Besonders attraktiv ist die Lage für die Vermietung an Studierende, Berufstätige und urbane Zielgruppen. Die Nähe zur FH Steyr, zu Arbeitgebern, Gastronomie, Nahversorgung und öffentlichen Einrichtungen führt zu einer überdurchschnittlich hohen Auslastung und kurzen Wiedervermietungszeiten. Auch Wohngemeinschaften sowie kompakte Stadtwohnungen sind in dieser Lage nachhaltig gefragt.
Kombination aus Eigennutzung & Investment
Die Liegenschaft bietet darüber hinaus die Möglichkeit, Wohnen und Veranlagung ideal zu kombinieren. Dachterrassen- bzw. Freiflächen mit Blickrichtung Ennsufer schaffen ein hohes Maß an Wohnqualität und eignen sich hervorragend für Eigennutzer, die das Leben in der Altstadt schätzen, während der restliche Teil des Hauses weiterhin ertragreich vermietet wird.
Entwicklungspotenzial & Werthaltigkeit
Die kleinteilige Gebäudestruktur eröffnet vielfältige Optionen für zukünftige Nutzungskonzepte – von der Optimierung bestehender Grundrisse über die Weiterentwicklung von Atelier- oder Gewerbeflächen bis hin zu wertsteigernden Adaptierungen. Diese Flexibilität, gepaart mit der historisch gewachsenen Altstadtlage, bietet langfristiges Entwicklungspotenzial bei gleichzeitig hoher Bestandssicherheit.
In Summe vereint diese Immobilie eine exzellente Lage, stabile Vermietbarkeit und zusätzliche Entwicklungschancen – eine überzeugende Investition für Anleger, die auf nachhaltige Rendite, Werterhalt und urbane Qualität setzen.
energieausweistyp
- 25.11.2035
- Energieausweis gültig bis
- 267,5 kWh/(m²a)
- HWB
- G
- Klasse HWB
- 2,91
- fGEE
- E
- Klasse fGEE
- 1573
- Baujahr