Der eingeschossige Bungalow in ruhiger Innenhoflage verbindet modernes, barrierearmes Wohnen mit der Leichtigkeit des Wörthersee-Lebensgefühls. Auf ca. 50 m² Wohnnutzfläche überzeugt das Haus durch ein durchdachtes Raumkonzept, große Glasflächen und eine Architektur, die Innen- und Außenraum harmonisch miteinander verschmelzen lässt.
Großzügige Glasflächen bringen viel Tageslicht ins Innere und öffnen den Blick in den Garten. So entsteht ein fließender Übergang zwischen Wohnen, Natur und der sonnigen ca. 12m² großen Terrasse – ein Wohngefühl, das Freiheit, Ruhe und Leichtigkeit vermittelt.
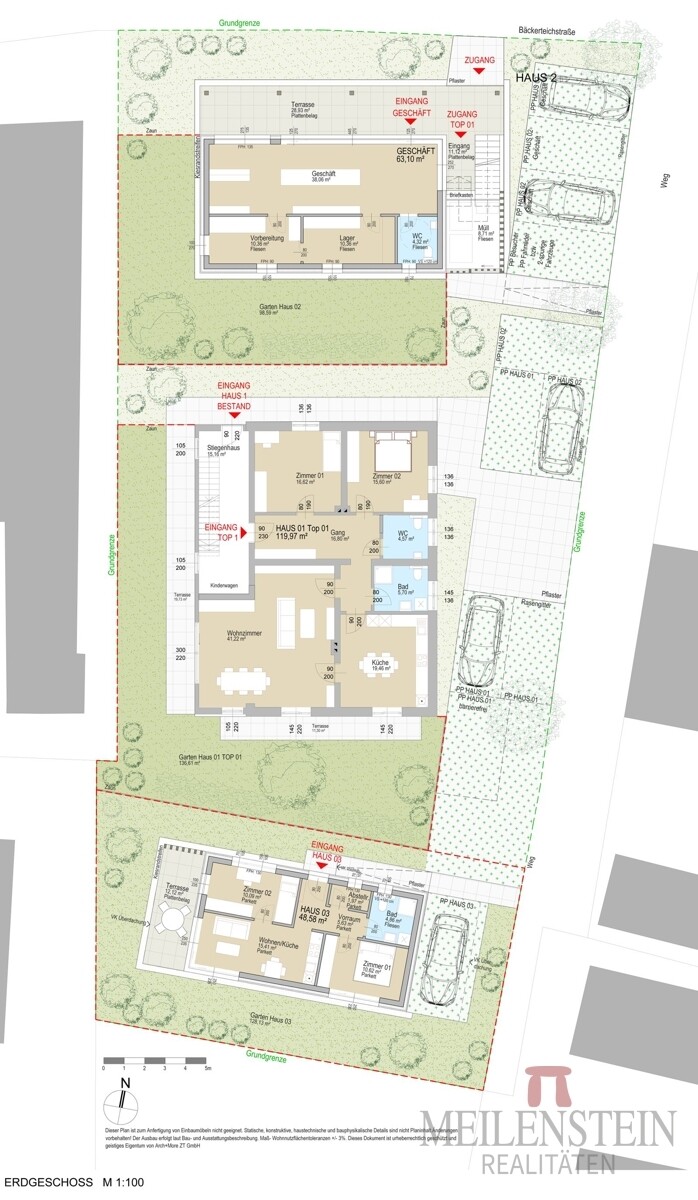
Der Grundriss umfasst:
– einen offenen Wohn- und Küchenbereich mit direktem Zugang zur Terrasse
– zwei vielseitige Zimmer, ideal als Schlafzimmer, Kinderzimmer oder Arbeitsraum
– ein modernes Badezimmer
– einen zentralen Vorraum mit Stauraum
Der Bungalow bietet Wohnen ohne Stufen, mit viel Licht, Klarheit und einer optimalen Nutzung der Fläche – perfekt für Singles, Paare, Best Ager oder alle, die Wohnen auf einer Ebene schätzen.
Der Grundriss des Bungalows wurde bewusst offen und praktisch gestaltet, um auf kompakter Fläche maximale Wohnqualität zu schaffen. Jeder Raum ist logisch angeordnet, angenehm proportioniert und bietet ausreichend Gestaltungsmöglichkeiten.
Die südlich ausgerichtete Terrasse erweitert den Wohnbereich nach draußen und schafft einen zusätzlichen Lebensraum, der fast das ganze Jahr über genutzt werden kann.
Der angrenzende private Garten bietet Platz zum Entspannen, Gärtnern, Spielen oder einfach zum Zurücklehnen und Genießen.
Der Bungalow ist Teil eines harmonischen Gesamtkonzeptes aus Bestandsvilla (2 Einheiten) und drei Neubauten in klarer, moderner Architektur.
Das Projekt verbindet Natur, Wohnqualität und zeitlose Eleganz und bietet Wohnen in einer Lage, die zu den begehrtesten in Velden zählt.
Mehr Informationen zum Gesamtprojekt finden Sie auf der Projektseite:
www.seeklang.at
Interesse? Dann melden Sie sich bei unserem Makler vor Ort:
Daniel Schwarzmann – 0664 75005991
Sonstige Nebenkosten:
3,0% Vermittlungsprovision zzgl. 20% MwSt., Grunderwerbsteuer 3,5%, Grundbucheintragungsgebühr 1,1%.
Sie wollen Ihre Immobilie vermieten oder verkaufen? Wir stehen Ihnen gerne zur Seite und beraten Sie!
Meilenstein Realitäten GmbH
9220 Velden am Wörthersee | Am Corso 27
Kostenfreie Servicenummer 0800 221 750
Wohnen auf einer Ebene – modern und voller Leichtigkeit in ruhiger Innenhoflage
Kaufpreis: 450.000,00 €
Immobiliendetails
Technische Angaben
- DS3276-3
- ImmoNr.
Preise
- 450.000,00 €
- Kaufpreis
- 3 % vom Kaufpreis zzgl. 20 % MwSt.
- Aussenprovision
Kategorie
- Haus
- Objektart
- Bungalow
- Objekttyp
- Wohnen
- Nutzungsart
- Kauf
- Vermarktungsart
Geografische Angaben
- 9220
- PLZ
- Velden am Wörthersee
- Ort
- Kärnten
- Bundesland
- Österreich
- Land
Flächen
- 49 m²
- Wohnfläche
- 3
- Anzahl Zimmer
- 2
- Anzahl Schlafzimmer
- 1
- Anzahl Badezimmer
- 1
- Anzahl sep. WC
- 1
- Anzahl Terrassen
Ausstattung
- Fernwärme
- Befeuerung
- Fliesen, Parkett
- Boden
- 1 Carport
- Stellplätze
Ansprechpartner:
Herr Daniel Schwarzmann
Meilenstein Realitäten GmbH
- Tel.:
- 0664 7500 5991
- E-Mail:
- d.schwarzmann@meilenstein.co.at
Am Corso 27
9220 Velden am Wörther See
Beschreibung
Grundrisse
Lage
Bäckerteichstraße – Wohnen in einer der begehrtesten Wohnlagen Veldens
Die Bäckerteichstraße befindet sich in einer ruhigen, sonnigen und gewachsenen Wohngegend im Herzen von Velden am Wörthersee – nur wenige Gehminuten vom türkisblauen Seeufer, vom pulsierenden Ortszentrum und vom beliebten Schulzentrum entfernt.
Diese Lage vereint alles, was modernes Wohnen so besonders macht: Natur, Lebensqualität und perfekte Infrastruktur – eingebettet in die Leichtigkeit des Wörthersee-Lebensgefühls.
Zentrumsnah und dennoch ruhig
Die Bäckerteichstraße ist eine charmante Seitenstraße, die durch ihre angenehm ruhige Atmosphäre besticht. Trotz der idyllischen Lage erreicht man das Zentrum von Velden in nur wenigen Minuten:
• ca. 10 Gehminuten zum Wörthersee und zur Uferpromenade
• ca. 8 Gehminuten zum Ortskern mit Cafés, Restaurants & Boutiquen
• ca. 5 Gehminuten zum Schulzentrum Velden
Die perfekte Balance aus Nähe & Ruhe – ideal für Familien, Berufstätige und alle, die ein harmonisches Wohnumfeld schätzen.
Ein Standort, der das tägliche Leben erleichtert
Alles, was man im Alltag braucht, befindet sich in angenehmer Reichweite:
• Schule, Kindergarten & Hort – bequem zu Fuß erreichbar
• Supermärkte, Bäcker, Ärzte & Dienstleister in unmittelbarer Umgebung
• Bahnhof Velden – ideal für Pendler und Seeverbindungen
• Apotheke, Banken, Freizeiteinrichtungen nur wenige Minuten entfernt
Kurze Wege bedeuten mehr Zeit für das Wesentliche – Qualität, Familie, Freizeit.
Natur & Freizeit vor der Haustüre
Velden ist bekannt für seine unvergleichliche Kombination aus Natur, Lifestyle und sportlichen Möglichkeiten.
Von der Bäckerteichstraße aus öffnen sich zahlreiche Wege in eine Welt voller Freizeitmöglichkeiten:
• Wörthersee – zum Baden, Spazieren, Stand-up-Paddeln oder einfach nur Genießen
• Rad- und Spazierwege direkt ab der Haustür
• Tennis, Golf & Wassersport im nahen Umfeld
• Der beliebte Panoramaweg Velden liegt nur wenige Minuten entfernt
Der See ist allgegenwärtig und schafft eine Atmosphäre, die jeden Tag ein Stück leichter macht.
Perfekte Anbindung
Auch verkehrstechnisch überzeugt die Lage in der Bäckerteichstraße:
• Autobahnauffahrt Velden West: 4 Minuten
• Villach: 15 Minuten
• Klagenfurt: 20 Minuten
• Flughafen Klagenfurt: ca. 25 Minuten
Die ruhige Wohnlage wird hier mit hervorragender Mobilität kombiniert – ideal für Pendler und Vielreisende.
Ein Wohnumfeld mit Zukunft
Velden zählt seit Jahren zu den attraktivsten Wohnorten Kärntens – nicht nur wegen der Seenähe, sondern auch aufgrund der wirtschaftlichen Stabilität, der guten Infrastruktur und der hohen Lebensqualität.
Die Bäckerteichstraße gilt dabei als eine der beliebtesten Adressen, da sie Ruhe, Zentrumsnähe und Natur auf besondere Weise verbindet.
Fazit: Eine Lage, die das Leben bereichert
Die Bäckerteichstraße bietet eine Wohnqualität, die man nur selten findet:
ruhig – zentral – naturnah – familienfreundlich – wertbeständig.
Ein Standort, an dem das Wohnen mehr wird als Alltag – ein Lebensgefühl, das inspiriert und trägt.
Die Bäckerteichstraße befindet sich in einer ruhigen, sonnigen und gewachsenen Wohngegend im Herzen von Velden am Wörthersee – nur wenige Gehminuten vom türkisblauen Seeufer, vom pulsierenden Ortszentrum und vom beliebten Schulzentrum entfernt.
Diese Lage vereint alles, was modernes Wohnen so besonders macht: Natur, Lebensqualität und perfekte Infrastruktur – eingebettet in die Leichtigkeit des Wörthersee-Lebensgefühls.
Zentrumsnah und dennoch ruhig
Die Bäckerteichstraße ist eine charmante Seitenstraße, die durch ihre angenehm ruhige Atmosphäre besticht. Trotz der idyllischen Lage erreicht man das Zentrum von Velden in nur wenigen Minuten:
• ca. 10 Gehminuten zum Wörthersee und zur Uferpromenade
• ca. 8 Gehminuten zum Ortskern mit Cafés, Restaurants & Boutiquen
• ca. 5 Gehminuten zum Schulzentrum Velden
Die perfekte Balance aus Nähe & Ruhe – ideal für Familien, Berufstätige und alle, die ein harmonisches Wohnumfeld schätzen.
Ein Standort, der das tägliche Leben erleichtert
Alles, was man im Alltag braucht, befindet sich in angenehmer Reichweite:
• Schule, Kindergarten & Hort – bequem zu Fuß erreichbar
• Supermärkte, Bäcker, Ärzte & Dienstleister in unmittelbarer Umgebung
• Bahnhof Velden – ideal für Pendler und Seeverbindungen
• Apotheke, Banken, Freizeiteinrichtungen nur wenige Minuten entfernt
Kurze Wege bedeuten mehr Zeit für das Wesentliche – Qualität, Familie, Freizeit.
Natur & Freizeit vor der Haustüre
Velden ist bekannt für seine unvergleichliche Kombination aus Natur, Lifestyle und sportlichen Möglichkeiten.
Von der Bäckerteichstraße aus öffnen sich zahlreiche Wege in eine Welt voller Freizeitmöglichkeiten:
• Wörthersee – zum Baden, Spazieren, Stand-up-Paddeln oder einfach nur Genießen
• Rad- und Spazierwege direkt ab der Haustür
• Tennis, Golf & Wassersport im nahen Umfeld
• Der beliebte Panoramaweg Velden liegt nur wenige Minuten entfernt
Der See ist allgegenwärtig und schafft eine Atmosphäre, die jeden Tag ein Stück leichter macht.
Perfekte Anbindung
Auch verkehrstechnisch überzeugt die Lage in der Bäckerteichstraße:
• Autobahnauffahrt Velden West: 4 Minuten
• Villach: 15 Minuten
• Klagenfurt: 20 Minuten
• Flughafen Klagenfurt: ca. 25 Minuten
Die ruhige Wohnlage wird hier mit hervorragender Mobilität kombiniert – ideal für Pendler und Vielreisende.
Ein Wohnumfeld mit Zukunft
Velden zählt seit Jahren zu den attraktivsten Wohnorten Kärntens – nicht nur wegen der Seenähe, sondern auch aufgrund der wirtschaftlichen Stabilität, der guten Infrastruktur und der hohen Lebensqualität.
Die Bäckerteichstraße gilt dabei als eine der beliebtesten Adressen, da sie Ruhe, Zentrumsnähe und Natur auf besondere Weise verbindet.
Fazit: Eine Lage, die das Leben bereichert
Die Bäckerteichstraße bietet eine Wohnqualität, die man nur selten findet:
ruhig – zentral – naturnah – familienfreundlich – wertbeständig.
Ein Standort, an dem das Wohnen mehr wird als Alltag – ein Lebensgefühl, das inspiriert und trägt.
energieausweistyp
- 2026
- Baujahr